Обяви За нас Контакти
Продава 3-СТАЕН
град София, Студентски град
223 200 €
436 541.26 лв.

(2 400 €, 4 693.99 лв./m2)
Цената е с включено ДДС
История на цената
Коригирана в 11:20 на 2 февруари, 2026 год.
Обявата е посетена 6995 пъти.
Площ:
93 m2
Етаж:
5-ти от 5
Газ:
ДА
Строителство:
Тухла, Въведен в експлоатация 2025 г.

Описание на имота:


🆕Имаме удоволствието да представим на вашето внимание в продажба, АПАРТАМЕНТИ, в новопостроена жилищна сграда, със смесено предназначение: жилищно и търговско, пред АКТ 16, с гаражи и паркоместа в район Студентски, кв. Малинова долина, гр.София.

✅ Сградата е газифицирана, с монтирани газови котлета и свързани разпределители в колекторни кутии, монтирани радиатори и лири във всеки един обект.

✅ Помещенията се издават, както следва: стени- шпакловани и боядисани с една ръка бял латекс, подове- на замазка, монтирани ключове и контакти, водопроводната инсталация е до тапа.

🎯 Инвеститорът е и строител, с дългогодишен опит в сферата на строителството. Дружеството е специализирано в комплексно изграждане на жилищни, обществени и индустриални сгради и прилежащата инфраструктура. Разполага с добре подготвени технически кадри, строителна техника и механизация, с които обхваща пълния цикъл на строителство на сгради и съоръжения от проектирането до изграждането.

🌍В района има седем висши училища, две средни училища, осем детски градини, една детска ясла, гимназии и частни учебни заведения. Районът е обособен и като жилищен, с преобладаващо ново строителство. В непосредствена близост е до Национална Спортна Академия Васил Левски.

🆓Последни свободни апартаменти:

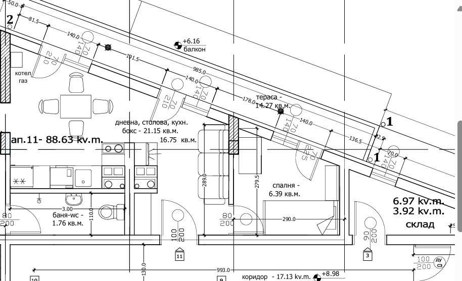
➡️Ап.11 етаж 4, РЗП 105,44 кв.м., изложение северозапад, разпределение: кухненски бокс с трапезария и дневна, спалня, баня с тоалетна, голяма панорамна тераса, склад 3.92 кв.м. Цена 253 061 EUR/494 944 BGN. Видео👉https://youtu.be/dnW3BjBDhHI

➡️Ап.12 етаж 5/последен, РЗП 92,54 кв.м., изложение северозапад/югоизток, разпределение: кухненски бокс с трапезария и дневна, 2 спални, баня с тоалетна, 2 големи панорамни тераси. Прилежащо мазе 3,38 кв.м. Цена 222 100 EUR/434 389 BGN. Видео👉https://youtu.be/YehIKv7ppSs

➡️Ап.13 етаж 5/последен, РЗП 85,58 кв.м., изложение северозапад, разпределение: кухненски бокс с трапезария и дневна, спалня, баня с тоалетна, 2 големи панорамни тераси. Прилежащо мазе 2,68 кв.м. Цена 205 383 EUR/401 694 BGN. Видео👉https://youtu.be/86ayFxQV0K4

🚗 Възможност за допълнително закупуване на подземни гаражи- 35 000 EUR или паркоместа- 25 000 EUR

За бърз контакт☎️0895 505 584

🆘Как можем да ви съдействаме за покупка, финансиране, ремонт и друго, вижте в секцията ни Услуги тук👉https://aksent.bg/services/

⚠️Повече информация, за резервиране на оглед и за контакт, вижте тук 👉 https://aksent.bg/property/apartamenti-prodava-studentski-sofia/

812 918 72
412 488 71
741
889
8
Особености
Тухла
Асансьор
С гараж
Контрол на достъпа
Охрана
За контакт:
0895505584

Този имот се предлага само на частни лица
Агенция:
АКСЕНТ КОНСУЛТ
0895505584
АКСЕНТ КОНСУЛТ logo
Медал за прослужено време
В imot.bg от 2021 г.
aksent.imot.bg
Адрес:
област Перник, гр. Перник, ул. Райко Даскалов 1, Бизнес център Перник, офис 1А
ИЗПРАТИ ЗАПИТВАНЕ
ИЗПРАТИ ЗАПИТВАНЕТО

Продава 3-СТАЕН
град София, Студентски град
Обява: 1c174438231772621

223 200 €
436 541.26 лв.
История на цената
(2 400 €, 4 693.99 лв./m2)

Цената е с включено ДДС
ЗАПАЗИ ОБЯВАТА

Местоположение: град София, Студентски град

Допълнителни данни за имотите в района и сравнение с други райони

Покажи

Период

и 2 месеца

* Средните цени са определени чрез медианна стойност